Ikke-kategoriseret

Opdatering 27-12-2025

Kære H783-venner

Årets sidste arbejdsdag løb af stablen i Gedser i dag. 4 graders varme og til tider skønneste solskin.

Vi havde nogle hængepartier fra sidste uge:
De sidste svejsninger på dækket blev slebet pænt så der ikke skal gøres mere ved dem. Alle gevindstykkerne til mandehullets låg blev isat dækpladen og svejst fast. De dertil hørende huller i låget blev boret op til 12 mm og alting passer fint og kan nemt tages af og lægges på. Når vi er færdige inde i vandkassen lægges en gummipakning i og alle 18 møtrikker skrues på. De og låget skal kun af når der skal serviceres……

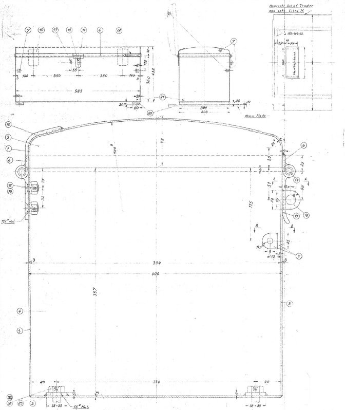
Når nu vi var i gang med gevind, møtrikker og bolte fik vi den gode ide, at vi lige så godt kunne forberede gevind til fastgørelse af den nye værktøjskasse, som en frivillig for længe siden har produceret på teknisk skole og som skal stå bagest ovenpå vandkassen. Frichs’ tegning siger også, at den skal fastgøres med 4 stk. gevindstykker og møtrikker i 5/8” og at der skal være mellemrum mellem værktøjskassens bund og dækket. Dette mellemrum opnås ved at lægge to egetræs ”understøtning” under bunden.

Vi startede med at flytte vort lager af bolte m.v. fra værktøjskassen i graven i spor 1 op i pallereolen. Herefter blev værktøjskassen flyttet op af graven, hen ad gulvet og op på vandkassen, hvor den blev fikseret på sin endelige plads. Herefter blev 4 stk. 16mm huller (svarer til de 5/8” bolte, der skal igennem) boret i hver sit hjørne – hele vejen gennem bunden og dækket.

Næste gang vil hullerne overføres til de 2 egetræs understøtninger og boltene til fastgørelse af hele herligheden monteres nedefra, hvorefter hovederne bliver svejst fast.
Det er godt at have planer.

I dag lørdag den 27.12.25 går endnu et år snart på hæld: 2025. Men vi synes selv, vi har fået nået en del i løbet af året, selvom vi bliver nødt til at gøre det i omvendt rækkefølge: Normalt laver man tenderen til sidst, men da lokomotivets hjul endnu ikke er færdige og vi ikke kan montere mere på lokomotivrammen, før hjulene med lejer m.v. er på plads, har vi valgt at kaste os over tenderen i ventetiden. Der går rygter om, at der omsider igen arbejdes på hjulene og at der skulle være en rimelig chance for at de dukker op – “snart”.

Tenderen har i løbet af 2025 fået nyt dæk – eller låg om man så kan sige. Der er IKKE flere gennemtærede plader i toppen og risikoen for at falde igennem er ikke længere tilstede.
Alle forstærkninger inde i vandkassen er blevet befriet for deres gennemtærede dele og de allerfleste er blevet forstærket med nyt frisk jern. I skrivende stund mangler der 4 stk.
Der er blevet skiftet rusten plade over kulbakken og lågerne over dette er blevet passet til.

Tenderkassens forreste nederste hjørner er blevet skiftet grundet gennemtæring.
Der er malet og leveret beslag til førerhusets værktøjskasse, der produceres som sponsorat på et maskinværksted ”ude i byen”.
Vi har i sidste uge fået afklaring på, hvem der kan svejse revnerne i en af tenderens og en af lokomotivets revnede oliekasser, så de kan holde olien der, hvor den hører til.
Og sidst – men ikke mindst har vi fået produceret den bremsestang, vi manglede til tenderen.
Selvom alt dette måske ikke lyder som om vi har nået meget, så er vi mere end tilfredse. Alting tager tid – herunder udskæring af plader, tilpasning, svejsning og meget meget mere. Og jern, svejsetråd, svejsegas m.v. har vi kunnet indkøbe, for i alle er så flinke og læser med her – nogle af jer har endda gentagne gange understøttet projektet økonomisk.

Tak for et udbytterigt 2025 – jeg håber vi ”læses ved” i 2026.

Skriv et svar

Din e-mailadresse vil ikke blive publiceret. Krævede felter er markeret med *