Opdatering 16-12-2022
Kære H-783 venner
Ingen beretning om vejret i Gedser i dag – der har ikke været arbejdsdag i remisen. Men arbejdet fortsætter i øjeblikket fra de hjemlige himmelstrøg. Samtidigt kan denne opdatering også ses som en slags julestatus. Jeg kan forøvrigt anbefale jer også at læse teksterne i forbindelse med de oplagte fotos. Det hænder (lejlighedsvist) at jeg forklarer diverse detaljer her.
Sidste gang berettede jeg under en billedtekst, at Jørgen var i gang med at måle en støvplade, der afskærmer akselkassens åbning mod hjulet imod støv og skidt. Af de 8 støvplader, vi afmonterede kan kun den ene genbruges. Derfor er der nu indkøbt en plade i poppeltræ, som vi har fået en lokal snedker (min nabo
) til at skære de nye støvplader ud af. Poppeltræets egenskab er velegnet til dette formål og materialet fremgår da også af Frichs’ oversigt på tegningen. Arbejdet går i gang én af dagene og jeg regner med, at 7 nye støvplader tager afsted til Gedser mellem jul og nytår for at indtage deres pladser i tenderens akselkasser, efterhånden som lejerne bliver færdigskrabet og akselkasserne monteres.
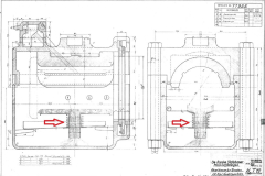
En anden ting, der skal bruges til akselkasserne er 7 stk. fjedre, der presser smørepuden op mod sølen og således er en vigtig ting af lejesmøringen. Sidste arbejdsdag fandt vi en enkelt af disse fjedre, vi ønskede at genbruge. Den sidder nu på sin plads i den første akselkasse, vi fik monteret. Resten har set bedre dage. I øjeblikket er vi ved at få en fjederfabrik til at producere nye og også disse nye fjedre regner vi med kommer til Gedser mellem jul og nytår. På tegningen kan ses en akselkasse – fjederens placering er markeret med rød pil.
Det store spørgsmål var for os, om lokomotivets hjul og den 4. tenderaksel nåede at få monteret nye bandager, få en profilafdrejning og lande i Gedser inden årets udgang. Det må vi nok sande, at vi ikke når. Til gengæld har vi været på besøg hos Limfjordsbanen i Aalborg i mandags den 12.12.22 og fik det positive indtryk, vi havde håbet på. Tenderaksel 4 og halvdelen af lokomotivets aksler HAR fået påkrympet deres respektive nye bandager og monteret sprængringe. Der mangler således kun 2 aksler, før alle hjul skal afdrejes i profil, hvorefter de alle sammen er klar til afhentning. Glenn ved godt at det er yderst vigtigt, at hjulene på alle 4 lokomotivaksler har samme diameter, da de er forbundet med drivstænger. Er der afvigelser, slider det på stænger og hjul.
Et mindre havari på drejebænken er skyld i, at transporten nok sker allerførst i det nye år, men alle skulle ved ankomsten være klar til at få tilpasset deres respektive lejer. Vi har aftalt med vores yndlingschauffør Toni Larsen, at han vil se velvillig på transporten i det nye år.
I denne forbindelse skal lyde en kæmpe stor tak til Jonas Schmidt Hansen, Limfjordsbanen, der har afrenset alle hjul og malet dem i sort. Denne uvurderlige hjælp sparer os for en masse arbejde udenfor i sne og slud.
Der bliver ikke flere arbejdsdage inden jul – nogle af os skal passe arbejdet med togfremførsel for en statslig jernbaneoperatør – andre hjælper en os venligtsindet klub med damp-veterantogsfremførsel på klubbens egen strækning mellem Høng og Gørlev. På denne måde vedligeholdes kompetancen i H783-Gruppen, så vi kan fremføre vores lokomotiv, når dette bliver aktuelt.
Vi satser på at afholde mindst én arbejdsdag mellem jul og nytår – der skal skrabes flere tenderlejer, justeres fjederstave, måske monteres flere akselkasser m.m.